Produktbeskrivelse
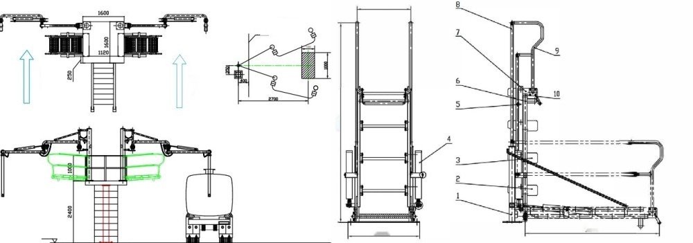
Sammenleggbare trapper for lasteplattform brukes til å bygge bro over avstanden fra lastestativer til tankvogner eller jernbanetankbiler. De kan også brukes til andre lignende applikasjoner. Trappen har en karbonstålkonstruksjon, komplett med rekkverk, anti-sklitrinn og fjærsylinderbalansering. Kontaktbraketten er dekket med oljebestandige gummistøtfangere for sikkerhet. Rammen kan brettes flat for å oppta en mindre plass når den ikke er montert.
Utvalgsspesifikasjon
1
SAT-3
3 trinns sammenleggbare trapp - med/uten sikkerhetsbur
2
SAT-4
4 trinn foldetrapp - med/uten sikkerhetsbur
3
SAT-5
5 trinn sammenleggbare trapper - med/uten sikkerhetsbur
| Serienummer | ||||
| SAT/HDT | ||||
| Trinn | ||||
| 3 | 3 trinn, forlenget lengde 1250MM | |||
| 4 | 4 trinn, utvidet lengde 2050MM | |||
| 5 | 5 trinn, forlenget lengde 2150MM | |||
| Bredde | ||||
| A | Bredde 600MM | |||
| B | Bredde 800MM | |||
| Sikkerhetsbur | ||||
| 0 | Uten sikkerhetsbur | |||
| 1 | Med sikkerhetsbur | |||
Materiale
Karbonstål Galvanisering, rustfri rist
Bruk
Byggeprosjekt, oljeprosjekt, havn, kraftverk, vannverk, forsvarsprosjekt, kjemisk fabrikk og så videre.
Produkter Konstruksjon
Foldetrappen for plattform er tilgjengelig i 3, 4 og 5 trinns konfigurasjoner, med eller uten sikkerhetskurv. Alle kan brettes flatt for å oppta liten plass når de ikke er montert.
Foldetrapp uten sikkerhetsbur
Produktfordel
Karbonstål galvanisert
Vedlikeholdsfritt lager
Arresterende enhet
Rekkverk
Støtteramme
Delt trinn for sikkerhet
Kontaktbrakett
Galvaniserte, anti-skli trinn
Fjærsylinder balanseringPopulære tags: sammenleggbare trapper for lasteplattform, Kina, leverandører, produsenter, fabrikk, tilpasset, pris, tilbud, på lager
